ที่ตั้ง:
วันที่เริ่มโครงการ:
จำนวนอาคาร:
0
พื้นที่โครงการ:
ตร.วา
จำนวนชั้น:
ชั้น
จำนวนห้อง:
ห้อง
ชื่อบริษัทเจ้าของโครงการ:
เบอร์โทรโครงการ:
เว็บไซต์โครงการ:
รายละเอียดเพิ่มเติม:
Luxury Riverside Condo for Rent/Sale
Bangkok, Thailand
Condo Name:
Supalai Casa Riva
Charoenkrung Road, Bangkorlaem, Bangkok 10120 Thailand
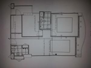
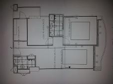
Floor:
25th Floor (Penthouse), fantastic views of Bangkok & Chao Praya river
Size:
77.5 Sq.m. 2 Bedrooms 2 Bathrooms, Living & Dining Area, Kitchen, Washroom
Price:
Rental: 32K THB (approx. 640 GBP) per month
Sale: 5.3M THB (approx. 120,000 GBP)
Facilities:
1 Training Pool, 1 Landscaped Pool, 1 Kid’s Pool, 2 Jacuzzis
Roof Garden, Riverside Garden, Pool Garden
Sauna, Steam Room, Fully Equipped Gym,
2 Badminton Courts, 2 Tennis Courts, 2 Squash Courts,
Kids Play Room, Kids Playground
1 Car Parking Space (Car also for sale if interested)
Large balcony space
24 hr security guards and vdo door security system
Nearby:
Convenience stores: 7-11, Tesco Lotus Express
Numerous Thai restaurants and food stalls
Bus Stop (Route No.1)
Shrewsbury International School
‘Asiatique’, Bangkok’s latest chic riverfront shopping & dining area
Maenam Riverside & Shangri-La Hotel
Siam Commercial, Thai Farmer and Bangkok Banks
Charoenkrung Pracharak Hospital
Silom shopping and business district (15-20 mins by taxi)
Sukhumvit Road (20-30 mins by taxi)
Sky Train (BTS) 10 mins by taxi
Bangkok, Thailand
Condo Name:
Supalai Casa Riva
Charoenkrung Road, Bangkorlaem, Bangkok 10120 Thailand
Floor:
25th Floor (Penthouse), fantastic views of Bangkok & Chao Praya river
Size:
77.5 Sq.m. 2 Bedrooms 2 Bathrooms, Living & Dining Area, Kitchen, Washroom
Price:
Rental: 32K THB (approx. 640 GBP) per month
Sale: 5.3M THB (approx. 120,000 GBP)
Facilities:
1 Training Pool, 1 Landscaped Pool, 1 Kid’s Pool, 2 Jacuzzis
Roof Garden, Riverside Garden, Pool Garden
Sauna, Steam Room, Fully Equipped Gym,
2 Badminton Courts, 2 Tennis Courts, 2 Squash Courts,
Kids Play Room, Kids Playground
1 Car Parking Space (Car also for sale if interested)
Large balcony space
24 hr security guards and vdo door security system
Nearby:
Convenience stores: 7-11, Tesco Lotus Express
Numerous Thai restaurants and food stalls
Bus Stop (Route No.1)
Shrewsbury International School
‘Asiatique’, Bangkok’s latest chic riverfront shopping & dining area
Maenam Riverside & Shangri-La Hotel
Siam Commercial, Thai Farmer and Bangkok Banks
Charoenkrung Pracharak Hospital
Silom shopping and business district (15-20 mins by taxi)
Sukhumvit Road (20-30 mins by taxi)
Sky Train (BTS) 10 mins by taxi







